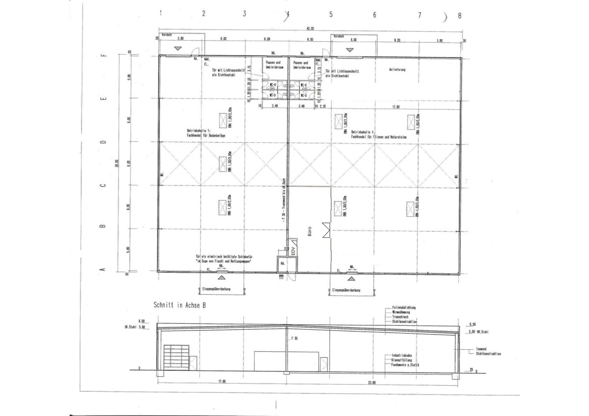
Der Gewerbepark an der B 221 wurde in zwei Abschnitten im Jahr 1998 und 2000 errichtet. Er besteht aus zwei Hallen mit jeweils einem Büro- und Sozialbereich für drei Mieter. Die Gesamtnutzfläche beläuft sich auf ca. 3.533 m² auf einem 8.215 m² großen Grundstück.

Erstklassiger Ankermieter! Modernisierter Gewerbepark mit drei Mietern in Übach-Palenberg.
Der Gewerbepark an der B 221 wurde in zwei Abschnitten im Jahr 1998 und 2000 errichtet. Er besteht aus zwei Hallen mit jeweils einem Büro- und Sozialbereich für drei Mieter. Die Gesamtnutzfläche beläuft sich auf ca. 3.533 m² auf einem 8.215 m² großen Grundstück. Im Jahr 2021 wurde das Hauptgebäude sehr langfristig an eine Einrichtung des Bundes vermietet und vor Mietantritt umfassend modernisiert. Der Büro- und der Sozialbereich wurden komplett neu aufgeteilt, alle Fenster sind durch isolierverglaste Sicherheitsfenster ersetzt worden und alle Sektionaltore vergrößert. Das andere Gebäude mit zwei Mietflächen ist seit 2012 linksseitig an eine Firma für Büroreinigungsbedarf auf ca. 540 m² Nutzfläche vermietet. Die zweite Fläche mit ca. 720 m² Nutzfläche wurde im Jahr 2023 an einen Produzenten von Terrassenüberdachungen vermietet und zuvor modernisiert und um einen innenliegenden Bürobereich ergänzt. Zu den beiden Hallen gehören 48 Stellplätze. Bei Interesse senden wir Ihnen gerne eine detaillierte Mietaufstellung zu. Die Jahresnettokaltmiete beläuft sich aktuell auf 282.033,00 Euro. Bei einem Kaufpreis in Höhe von 3.979.000,00 Euro eine attraktive Rendite. Fordern Sie gleich Ihr Exposé an. Gerne stehen wir Ihnen bei Fragen unter 0174-9334300 zur Verfügung.
Energieausweis: B: 243,6 kWh/(m²a), Erdgas, Baujahr 1998/2000!
Halle 1 Isolierverglasung mit Sicherheitsglas
Gasheizung in allen Gebäuden
Schulungsraum
Büros und Technikräume komplett erneuert
Sozialräume
Fahrzeughallen und Lager
Sektionaltore in allen Gebäuden
Isolierverglasungen
neuer Bürobereich in Halle 2
und vieles mehr
Übach-Palenberg liegt rund 18 Kilometer nördlich von Aachen im Kreis Heinsberg. Nachbarkommunen sind die Gemeinde Landgraaf in den Niederlanden und die Städte Geilenkirchen, Baesweiler, Alsdorf und Herzogenrath in Deutschland. Ortsansässig sind die international tätigen Firmen Neuman & Esser, Rieter, SLV, Saurer ehemals Schlafhorst und SpanSet. Das Unternehmen Universal Polythex Kunststoffe GmbH produziert seit 2001 in Übach-Palenberg. Die Firma Solent GmbH & Co. KG produziert Schokolade, Nüsse und Trockenfrüchte in einem neu gebauten Werk. Die Bonback GmbH & Co. KG betreibt am gleichen Standort eine Großbäckerei. Ein weiteres Unternehmen ist der Speiseeis-Hersteller Bon Gelati GmbH & Co. KG. Die MEG Übach-Palenberg GmbH stellt PET-Regranulat und PET-Rohlinge her. Solent, Bonback, Bon Gelati und MEG gehören zur Schwarz Produktion Stiftung & Co. KG, einer Holding der Schwarz-Gruppe und produzieren für Lidl und Kaufland.
Infrastruktur:
Dist. Kindergarten (km): 0,48 km
Dist. Grundschule (km): 0,50 km
Dist. Realschule (km): 0,83 km
Dist. Gymnasium (km): 0,76 km
Dist. Zentrum (km): 0,80 km
Dist. Einkaufsmöglichkeiten (km): 0,19 km
Dist. Gaststätten (km): 0,38 km
Dist. Autobahn (km): 10,07 km
Dist. Bus (km): 0,12 km
Dist. Fernbahnhof (km): 0,96 km
Mit uns haben Sie den richtigen Partner an Ihrer Seite
Sie sehen gerade einen Platzhalterinhalt von OpenStreetMap. Um auf den eigentlichen Inhalt zuzugreifen, klicken Sie auf die Schaltfläche unten. Bitte beachten Sie, dass dabei Daten an Drittanbieter weitergegeben werden.
Mehr InformationenSie sehen gerade einen Platzhalterinhalt von Google Maps. Um auf den eigentlichen Inhalt zuzugreifen, klicken Sie auf die Schaltfläche unten. Bitte beachten Sie, dass dabei Daten an Drittanbieter weitergegeben werden.
Mehr InformationenSie sehen gerade einen Platzhalterinhalt von OpenStreetMap. Um auf den eigentlichen Inhalt zuzugreifen, klicken Sie auf die Schaltfläche unten. Bitte beachten Sie, dass dabei Daten an Drittanbieter weitergegeben werden.
Mehr InformationenSie sehen gerade einen Platzhalterinhalt von Mapbox. Um auf den eigentlichen Inhalt zuzugreifen, klicken Sie auf die Schaltfläche unten. Bitte beachten Sie, dass dabei Daten an Drittanbieter weitergegeben werden.
Mehr Informationen