Das im Jahr 1923 errichtete Gebäude wurde bis 1962 von der Zeche genutzt und danach inklusive neuer Betondecken kernsaniert.

Halle, Labore und Werkstätten. Großes Gewerbeobjekt in guter Lage von Übach-Palenberg!
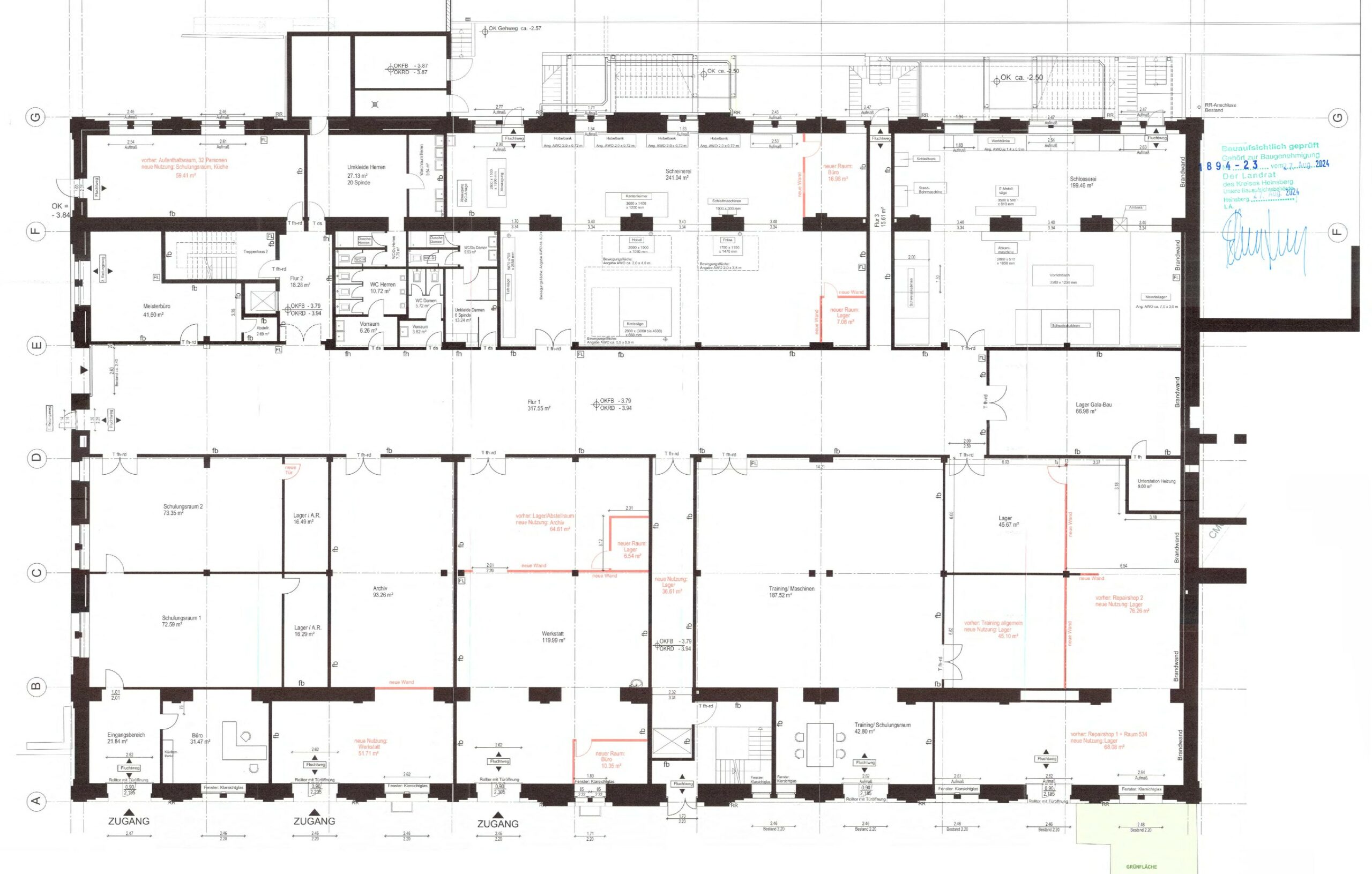
Das im Jahr 1923 errichtete Gebäude wurde bis 1962 von der Zeche genutzt und danach inklusive neuer Betondecken kernsaniert. Der Gebäudekomplex ist seitdem ständig instandgehalten worden und befindet sich in einem sehr guten Zustand. Im Hochparterre liegt eine 1.320 m² große Halle mit einer rund 357 m² großen Galerie, die aktuell noch nicht ausgebaut ist. Insgesamt verfügt das Gebäude über eine ausgebaute Nutzfläche von circa 4.470 m² ohne Galerie, die als Werkstätten, Schulungs- und Lagerräume genutzt wird. Geringe Anteile der Fläche sind noch bis Ende 2027 vermietet. Das Gebäude ist ab dem 01.01.2027 verfügbar. Im Umfeld sind diverse Einkaufsmöglichkeiten vorhanden, und wenige Minuten entfernt befindet sich die B 56, die eine schnelle Anbindung an die Autobahnen A 44 und A 46 ermöglicht. Bei einem Kaufpreis in Höhe von 2.359.000,00 Euro bietet sich hier ein attraktiver Firmenstandort im Gewerbegebiet von Übach-Palenberg. Fordern Sie direkt Ihr Exposé an oder kontaktieren Sie uns unter 0174-9334300.
Der Energieausweis ist in Arbeit.
zwei Sektionaltore
Isolierverglasung
Estrichboden
Gasheizung
28 Stellplätze
sehr guter Lichteinfall
und vieles mehr...
Übach-Palenberg liegt rund 18 Kilometer nördlich von Aachen im Kreis Heinsberg. Nachbarkommunen sind die Gemeinde Landgraaf in den Niederlanden sowie die Städte Geilenkirchen, Baesweiler, Alsdorf und Herzogenrath in Deutschland. Ortsansässig sind die international tätigen Firmen Neuman & Esser, Rieter, SLV, Saurer (ehemals Schlafhorst) und SpanSet. Das Unternehmen Universal Polythex Kunststoffe GmbH produziert seit 2001 in Übach-Palenberg. Die Firma Solent GmbH & Co. KG produziert Schokolade, Nüsse und Trockenfrüchte in einem neu gebauten Werk. Die Bonback GmbH & Co. KG betreibt am gleichen Standort eine Großbäckerei. Ein weiteres Unternehmen ist der Speiseeis-Hersteller Bon Gelati GmbH & Co. KG. Die MEG Übach-Palenberg GmbH stellt PET-Regranulat und PET-Rohlinge her. Solent, Bonback, Bon Gelati und MEG gehören zur Schwarz Produktion Stiftung & Co. KG, einer Holding der Schwarz-Gruppe und produzieren für Lidl und Kaufland.
Infrastruktur:
Dist. Kindergarten (km): 0,48 km
Dist. Grundschule (km): 0,50 km
Dist. Realschule (km): 0,83 km
Dist. Gymnasium (km): 0,76 km
Dist. Zentrum (km): 0,80 km
Dist. Einkaufsmöglichkeiten (km): 0,19 km
Dist. Gaststätten (km): 0,38 km
Dist. Autobahn (km): 10,07 km
Dist. Bus (km): 0,12 km
Dist. Fernbahnhof (km): 0,96 km
Mit uns haben Sie den richtigen Partner an Ihrer Seite
Sie sehen gerade einen Platzhalterinhalt von OpenStreetMap. Um auf den eigentlichen Inhalt zuzugreifen, klicken Sie auf die Schaltfläche unten. Bitte beachten Sie, dass dabei Daten an Drittanbieter weitergegeben werden.
Mehr InformationenSie sehen gerade einen Platzhalterinhalt von Google Maps. Um auf den eigentlichen Inhalt zuzugreifen, klicken Sie auf die Schaltfläche unten. Bitte beachten Sie, dass dabei Daten an Drittanbieter weitergegeben werden.
Mehr InformationenSie sehen gerade einen Platzhalterinhalt von OpenStreetMap. Um auf den eigentlichen Inhalt zuzugreifen, klicken Sie auf die Schaltfläche unten. Bitte beachten Sie, dass dabei Daten an Drittanbieter weitergegeben werden.
Mehr InformationenSie sehen gerade einen Platzhalterinhalt von Mapbox. Um auf den eigentlichen Inhalt zuzugreifen, klicken Sie auf die Schaltfläche unten. Bitte beachten Sie, dass dabei Daten an Drittanbieter weitergegeben werden.
Mehr Informationen