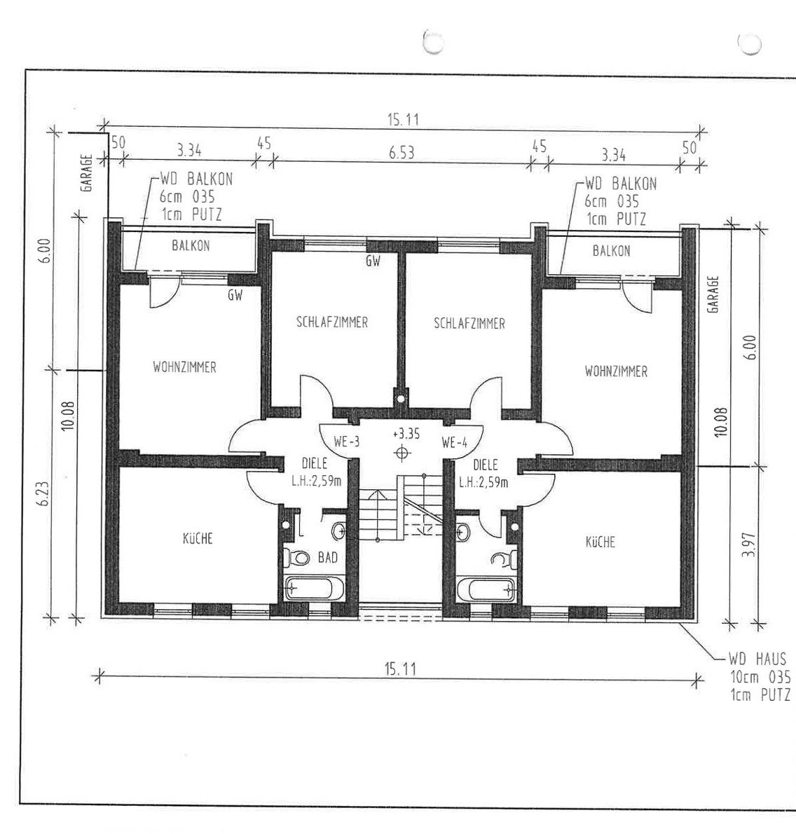
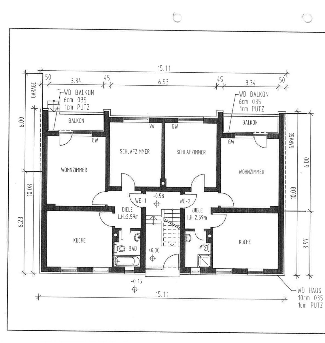
Die ursprünglich 1956 errichteten Mehrfamilienhäuser wurden im Jahr 2006 saniert und seitdem kontinuierlich instand gehalten.

Top sanierte Wohnanlage. Drei Mehrfamilienhäuser mit 12 Wohnungen in Wegberg!
Die ursprünglich 1956 errichteten Mehrfamilienhäuser wurden im Jahr 2006 saniert und seitdem kontinuierlich instand gehalten. Der Zustand der Gebäude ist sehr gut, und die Energieeffizienz mit D ebenfalls. Zu den drei Mehrfamilienhäusern gehören fünf Garagen und zwei Stellplätze. Das sehr gepflegte Grundstück erhöht die Attraktivität für die Mieter. Die Jahresnettokaltmiete liegt bei 60.420,00 Euro. Bei einem Kaufpreis in Höhe von 1.199.000,00 Euro ergibt sich eine attraktive Rendite, da keinerlei Instandhaltungsmaßnahmen erforderlich sind. Fordern Sie bei Interesse gleich Ihr persönliches Exposé an und nehmen Sie unter 0174-9334300 Kontakt zu uns auf.
Energieausweis Haus 6: V: 114,3 kWh/(m²a), Erdgas, Baujahr 1956!
Energieausweis Haus 7: V: 103,3 kWh/(m²a), Erdgas, Baujahr 1956!
Energieausweis Haus 8: V: 108,5 kWh/(m²a), Erdgas, Baujahr 1956!
Isolierverglasung mit Zwei- und Dreifachverglasung
Gaszentralheizung
Warmwasser über Heizung und Durchlauferhitzer
Duschen und Wannenbäder mit Tageslicht
Wärmedämmverbundsystem
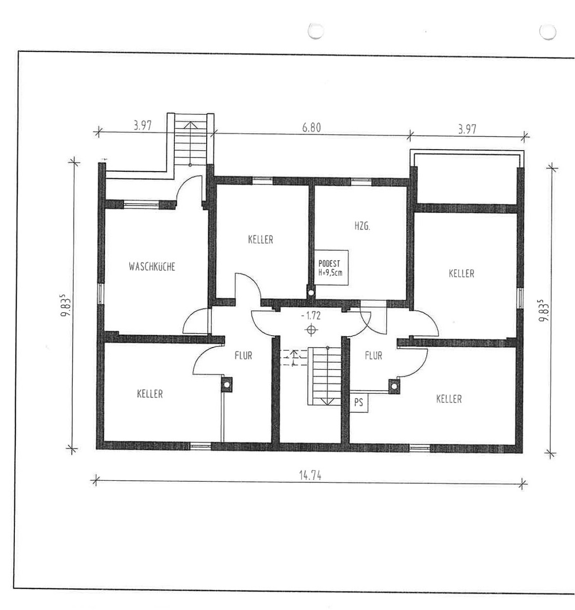
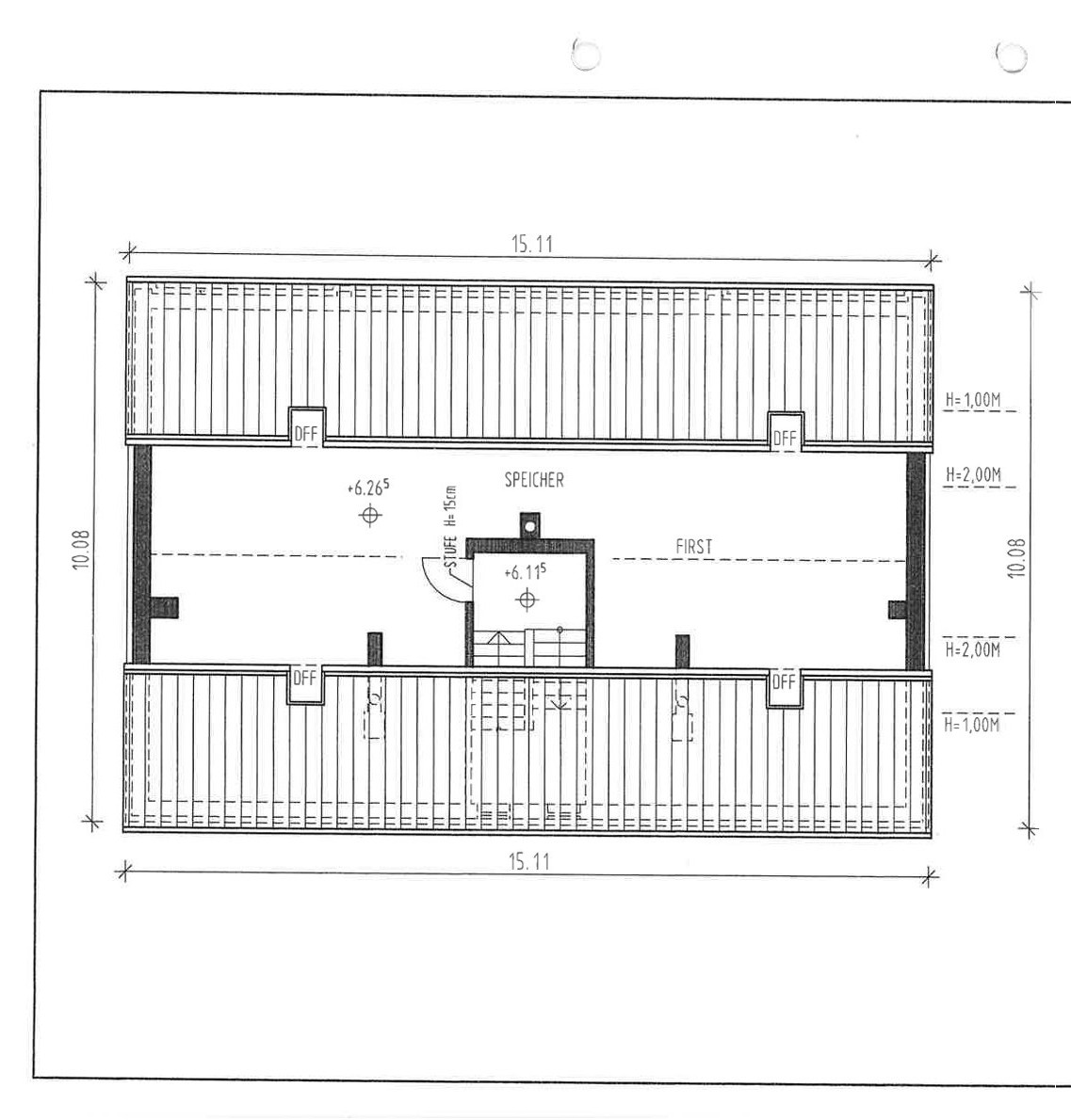
Unterkellert
Fünf Garagen
Zwei Stellplätze
Terrassen und Balkone
und vieles mehr...
Wegberg ist eine mittlere kreisangehörige Stadt des Kreises Heinsberg in Nordrhein-Westfalen. Sie grenzt an die Niederlande. Die Stadt Wegberg liegt im Norden des Kreises Heinsberg, wenige Kilometer westsüdwestlich von Mönchengladbach. Sie besteht aus 40 Ortsteilen und hat rund 30.300 Einwohner.
Dist. Kindergarten (km): 0,20 km
Dist. Grundschule (km): 0,70 km
Dist. Realschule (km): 6,92 km
Dist. Gymnasium (km): 5,88 km
Dist. Zentrum (km): 0,50 km
Dist. Einkaufsmöglichkeiten (km): 0,30 km
Dist. Autobahn (km): 7,09 km
Dist. Bus (km): 0,14 km
Dist. Fernbahnhof (km): 0,41 km
Mit uns haben Sie den richtigen Partner an Ihrer Seite
Sie sehen gerade einen Platzhalterinhalt von OpenStreetMap. Um auf den eigentlichen Inhalt zuzugreifen, klicken Sie auf die Schaltfläche unten. Bitte beachten Sie, dass dabei Daten an Drittanbieter weitergegeben werden.
Mehr InformationenSie sehen gerade einen Platzhalterinhalt von Google Maps. Um auf den eigentlichen Inhalt zuzugreifen, klicken Sie auf die Schaltfläche unten. Bitte beachten Sie, dass dabei Daten an Drittanbieter weitergegeben werden.
Mehr InformationenSie sehen gerade einen Platzhalterinhalt von OpenStreetMap. Um auf den eigentlichen Inhalt zuzugreifen, klicken Sie auf die Schaltfläche unten. Bitte beachten Sie, dass dabei Daten an Drittanbieter weitergegeben werden.
Mehr InformationenSie sehen gerade einen Platzhalterinhalt von Mapbox. Um auf den eigentlichen Inhalt zuzugreifen, klicken Sie auf die Schaltfläche unten. Bitte beachten Sie, dass dabei Daten an Drittanbieter weitergegeben werden.
Mehr Informationen